シンプルナチュラルな新築外構の施工例!お手入れ簡単な植栽と照明で飾るオープン外構!
砂利敷きだけでは無機質になりがちな玄関前を植栽+栗石+照明でおしゃれに演出しています!

こんにちは!ガーデンプラス那須塩原の玉田です!
かなり春を感じる今日この頃!花粉症歴30年の私には辛すぎる季節…でも、どんどん温かくなっていく、春はとてもいい(*´▽`*)花粉に負けずにたくさんお出掛けしたいですね!
さて今回は栃木県那須塩原市の新築外構工事の施工事例です。シンプルでナチュラルな外構デザインがポイントとなっております。
お客様からのご要望はこちらです!
・2台分の駐車スペース+1台分の来客用駐車スペース
・植栽を含めたアプローチ
・手間のかからないお庭
新築工事着手前で、期待いっぱいでご来店をいただいたことを覚えております。今回は照明のご提案もさせていただき、夜の雰囲気も良いおしゃれなオープン外構のご紹介です!是非ご覧ください!
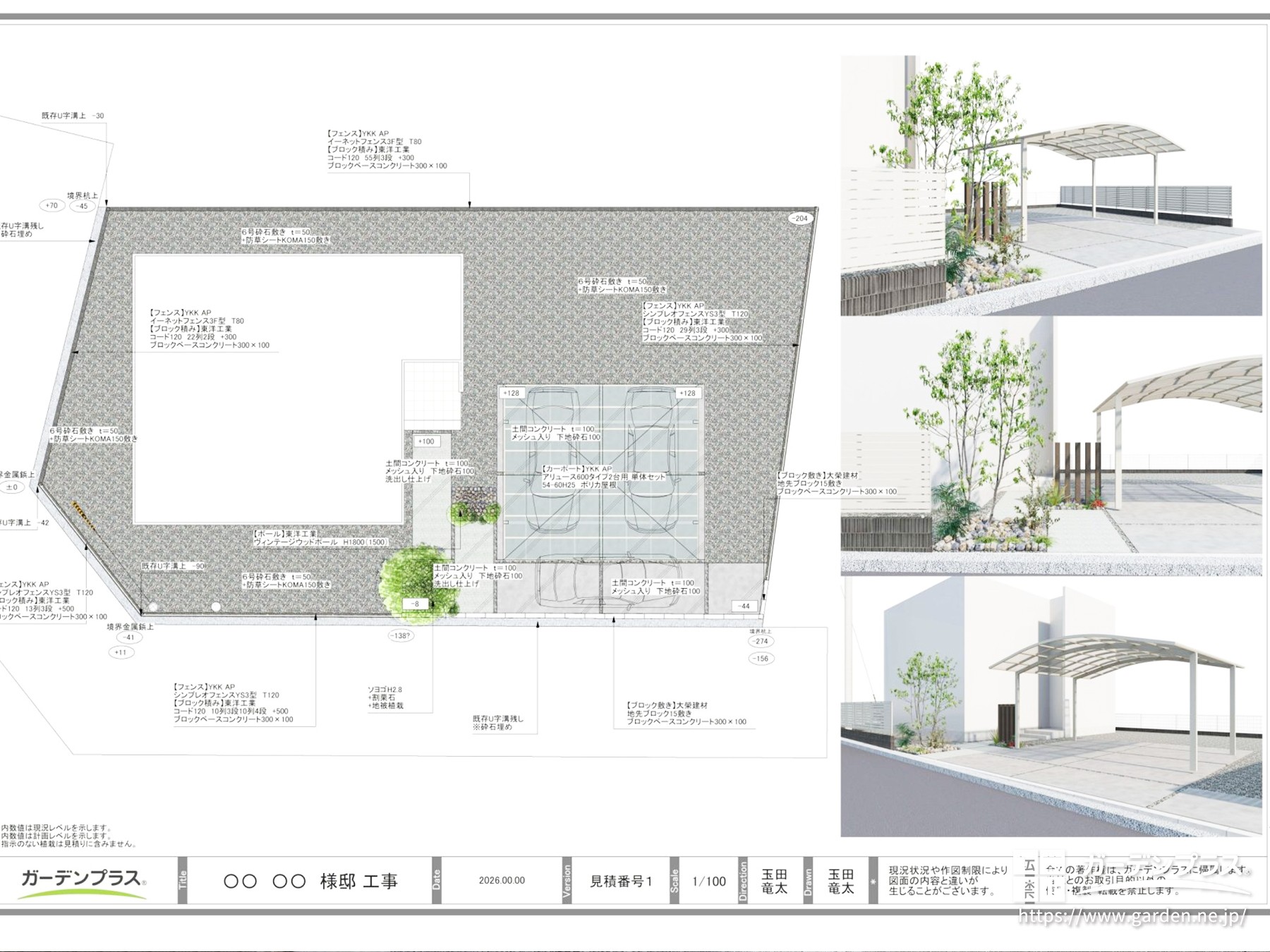
お客様にご提案させていただいたシンプルナチュラルデザインの外構図面
ご提案させていただいた外構デザイン図面がこちらになります。
シンプルではありますが、飾るところは華やかにさせていただき、ナチュラルな温かみを大切にしたメリハリのある外構デザインです。予算あっての外構計画です。敷地が広い場合、たくさんのことをしていなくても費用が膨らみます。大切にこだわりたい部分は残させていただき、コストカット案をいくつかご提案させていただきながら、理想の形を一緒に作り上げていきました。それでは工事後どうなったかを見てみましょう!
シンプルでナチュラルデザインが魅力の「東洋工業 機能ポール」
玄関の前に東洋工業の機能ポール、ヴィンテージウッドポールを設置しました。外構をおしゃれでナチュラルに演出するための、主役級のアイテムです。タカショーのウォールライト11型を組み合わせることで、ブラックのアクセントが全体を引き締め、ナチュラルな中にも洗練された雰囲気に仕上がりました。今回のプランでは、照明計画も大切な外構デザインのひとつとして取り入れています。
表札には東洋工業のアゴラを採用しました。壁面から約15mm浮かせて取り付けることで、ほどよい立体感が生まれ、さりげない存在感を演出しています。(*´▽`*)
シンプルナチュラルな外構を彩る夜の雰囲気|門周り
ヴィンテージウッドポールと表札、栗石、植栽に照明による陰影が出て、シンプルナチュラルな雰囲気の日中とは違う良さが出てきます!
当初、照明はご要望にはなかったのですが、当店の施工事例等をご覧いただき、追加で採用いただきました。照明や植栽、割栗石等は無くても生活は出来ますし、コストカットという面においては採用する優先順位が低く、削られてしまう可能性が高い外構アイテムかと思います。ですが、工事完了後、採用して良かったと感じるアイテムも照明や植栽なのではないかと思います・・!
今回は私たちの提案を採用いただき、残す選択をいただきました!
お客様からお褒めいただいた夜の雰囲気|外構全体
明るい我が家は帰宅時の疲れを癒してくれますね!照明の位置はお客様にも相談しながら、眩しさ等を考慮して配置させていただきました。
夜の光に映える様子をお客様からもお褒めいただきました。ベースの外構をシンプルナチュラルに整えているからこそ、夜の雰囲気がより一層際立ちます。
シンプルナチュラルな外構を引き立てる手間のかからない地被植栽
ロックガーデンの栗石の間に植栽を配置しています。手間のかからない植栽計画にするためには植える植物と作り方がとても大切です!植物がない栗石の下には防草シートを敷いておりますので、雑草はほとんど生えず、お手入れもかなり楽になりますよ(*^^)vまた、一年で枯れてしまう植物をあまり使わないようにすることで、植替え等の手間もなく、管理していただけます!
手入れの手間のかからないシンボルツリー「ソヨゴ」
メインのシンボルツリーにはソヨゴを採用しました。こちらは常緑樹になるので、1年を通して落ち葉が少ないのが特徴。冬でも見栄えが良いのでおすすめです!また、成長も穏やかで剪定等の手間が少なくてすむのもいいところです!植栽があることでシンプルナチュラルな外構をぐっと華やかにしてくれますよ!
最後に|外構デザインのご提案はお任せください!
皆様、いかがでしたでしょうか?
今回の新築工事では、いくつものテーマを丁寧に組合せながら、お客様の要望+ガーデンプラスの提案で理想の外構デザインを形にしました。シンプルナチュラルな雰囲気が植栽によりとっても引き立っていますね!今後、シンボルツリーや草花が育つにつれて、より一層お住まいへの愛着が湧くお庭になっていくことが楽しみです!このたびはお庭の工事をご依頼いただき、誠にありがとうございました!
ガーデンプラスでは、現地調査から設計・施工を通して、ご家族のおもいに寄り添ったご提案を大切にしています。
お庭のご相談はお気軽にご連絡くださいね(^^♪

些細なことでも大歓迎!お気軽にお問い合わせください
お庭に関する事なら、ガーデンプラスへお任せください。ガーデンプラスは、全国で外構工事を手掛けるガーデンメーカーです。店舗でのご相談はもちろん、フォームやお電話からのお問い合わせも承っております。
記事に関してのご質問は、外構のプロスタッフがお答えいたします。
最後までお読みいただきありがとうございます。
リフォームから新築外構工事までお気軽にご相談ください!
ガーデンプラス那須塩原
店長・営業・ガーデンプランナー 施工管理
玉田竜太
頼んでよかったと心から思っていただけるお庭づくりをご提案いたします。
栃木県那須塩原市ガーデンプラス 那須塩原

ガーデンプラス 那須塩原のご案内
5%キャッシュバックキャンペーン実施中
店頭にご来店いただいた旨をフリーダイヤル(0120-694-028)でお伝えいただくか、Webからお申込みいただきますと、5%お値引きした価格にてお見積りさせて頂きます! ※施工写真のご送付と簡単なアンケートにお答えください。
- 加盟社
- 株式会社ねくすと
- 所在地
- 〒329-2754
栃木県那須塩原市西大和1-8
そすいスクエアAQUAS 1F 105A
- TEL
- 0120-694-028
- FAX
- 078-262-1615
- 営業時間
- 10:00~17:00
- 店舗定休日
- 毎週水曜日
GW/年末年始/夏季休業日
- 打合せ
スペース - あり
- 駐車場
- 無料駐車場有





























